1 Lot Available SMSF

[Estate]

Melbourne, Wollert , VIC, 3750,

$865,016

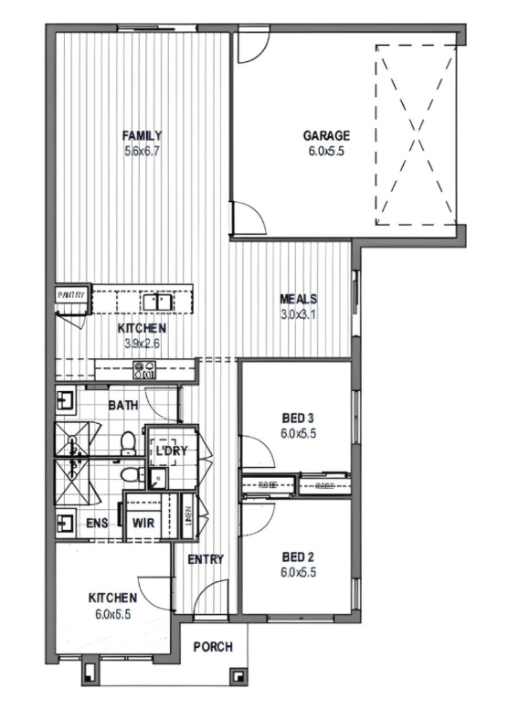
3 Beds
2 Bath
2 Garage

*Please be advised that some lots/units may need confirmation of availability. Kindly ensure to check availability first by emailing or phoning us.*

Nestled in between ancient trees, [Estate] is a unique opportunity – a thriving community connected to nature, with every amenity you need nearby.

Living here it’s an easy commute to Melbourne’s CBD, via the M2 Tullamarine Freeway or Mernda Train Station with parking for 1,000 cars. Alternatively choose to use the direct road links to the south, east and west.

The community here has always been at one with nature, and at [Estate] that sentiment will continue. Rather than the hustle and bustle of larger developments, at [Estate] you’ll come home to idyllic peace and quiet.

You’ll be close to both nature and to the thriving northern corridor of Melbourne. With Wollert’s future plans involving a town centre, shops, cafes, schools, community and sporting clubs, all just minutes away.

Rent Weekly $540
Rent Monthly NA
Rent Yearly NA
Rental Yield Return 3.25%
Land Registration
Land Size 277m²
House Size 137.00m²

Collins Mayaki

0466970529